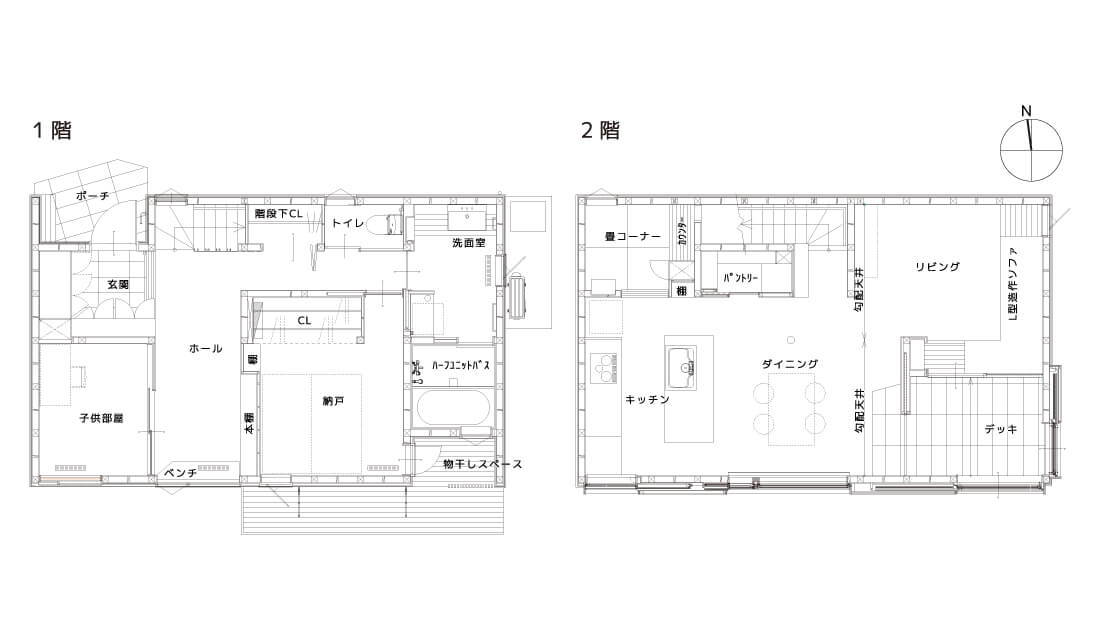
施工事例
Works
明るさのあそぶ明石の家




外観正面
植栽が映えるアプローチの向こうに佇む左官仕上の美しい外観。




玄関ホール
玄関とホールを一体化させ広々とした空間を確保。壁の中に引き込まれている扉を閉めれば個室になり、客間や子ども室、書斎など、様々な使い方が可能となる。


ホールにある書棚
壁面に本棚を書棚とデスクを造作。大窓に面したベンチが居心地の良い空間となっている。窓からの向こうの木々も美しく映える。




2階デッキとリビング
2面の大開口のあるインナーデッキ。大谷石で仕上げた足元がさらなる開放感を演出。




ダイニング
窓枠やカーテンレールを見せない細やかな納まり。丸柱には籐(ラタン)が巻かれている。ダイニングにあるエアコン一台で家全体の冷暖房を賄う独自の空調システムを取り入れている。


造作家具
デッキとの高低差を利用したソファや、空気清浄機などの家電スペースを確保したシンク台など緻密な計算のもと作られた家具。


浴室
桧の板張のハーフユニットバス。窓の外には木製の格子。



