施工事例
Works
里山に包まれる夢前の家


外観正面畑から
道路側からは軒が低く深い屋根と左官壁、兵庫県産杉材の取り合わせで里山の風景に溶け込む。


外観玄関正面から
エントランスを開けると北側の山を水田越しに建物を抜いて見ることができる。


エントランスと坪庭
玄関坪庭は桧の天井が軒天とつながるように内外の壁もつながるよう計画した。


本棚のある廊下
廊下には図書コーナーの用途を持たせた高窓のある廊下の照明は本棚背面からのみとした。


リビングのコーナー窓
南にあるコーナー窓は里山の風景を美しく切り取り冬は熱を取り入れ夏の日射はガラリで遮る。


リビングからDK
DKの天井は低く抑え、北の高窓からは柔らかい光がリビングを包む。


キッチンからリビング全景
キッチンからはリビングで団欒する家族とコミュニケ―ションをとりやすい計画としている。


コーナー窓と家族
緑のある縁側と繋がるコーナー窓に家族が集まる南西の窓は農村地域の稲荷神社が窓の中心に見えるように配置している神社の奥には桜の木があり春を彩るためそれを囲うように紅葉を高木として植栽した。


L型縁側デッキと家族
コーナー窓の先にはL型の縁側デッキを配置し芝生と植栽や下草や景石のある庭へと繋がる。


南からみる外観
北側にある山に向かって勾配のある屋根には鎖樋から水鉢に雨が落ちる。


東からみる外観
西にある山を遠景にして素材や形状に配慮し地域に馴染む外観とした。


父の水田に映る外観
主寝室からは祖父が今も耕す水田を眺めることができるその水田に家の低い寄棟の外観が映る。




コーナー窓の障子
リビングと主寝室にある二つのコーナー窓にはガラリと障子を設けて日射の調整と視線の遮蔽をできるようにし、リビングの障子は庭の緑だけを取り込むことも可能にした。


リビングからテレビボード
南からの光と北の高窓からの光が壁面を美しく撫でるように陰影をつくる。


主寝室
主寝室のコーナー窓からは水田から西の山景を楽しむことができる。


洗面室
洗面室の洗面台は更新しやすい既製品とし造作収納家具にゴミ箱を隠すことができる造作ドレッサーの上にある高窓からは坪庭の木が光を浴びる様子を見ることが出来る。


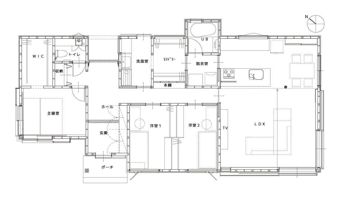
家事の回遊動線
キッチンすぐ横の扉からは幹太君のある脱衣ランドリー室と浴室、その先にクローゼットのある家事室、そして洗面室、さらにそこから廊下へと回遊できるようにしている。


子供室
リビングの近い位置に子供室、遠い位置に主寝室を計画して廊下のある平屋としている子供室の仕切りは将来撤去して一部屋にできるよう木のパネルで設置している。


干してたためるクローゼット
クローゼットには家族の日常の服を干してたたんで収納できるスペースとなっている。