施工事例
Works
50年先を見据えて叶えた桧の家


開口部からの光あふれる明るいLDK
開口部から存分に光を取り込む明るいLDK。リビングの頭上は寄棟勾配天井に。
TVボード背面の間接照明がエコカラットの壁面を柔らかく照らします。キッチン隣にはカウンターデスクを設け、お子様の宿題や、奥様コーナーとして活用できます。






夫婦で立てるゆとりあるキッチン
ご夫婦で料理をされるK様のため、二人でもゆったり作業できる様、スペースを確保しました。
システムキッチンにはお鍋などの大きなものも洗える海外製の食洗機を組み入れています。






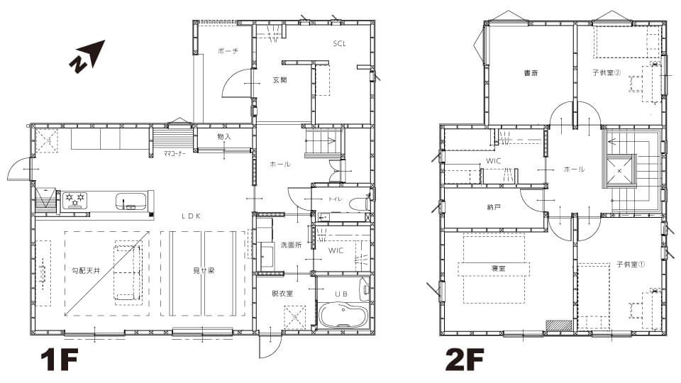
将来を見据えた2階設計
寝室や子ども室、書斎を配した2階は、将来エレベーター設置や室内にトイレを増設できるよう構造や配管を整えています。




重厚感と温かみを感じる玄関
木の質感と足下の大谷石が重厚感と温かみを演出しています。


和モダンの飽きの来ない外観デザイン
玄関ポーチには木の格子を用いて前面道路からの目隠しに。植栽や石選びにもこだわった外構で、和モダンなデザインに仕上げています。
REPORT
K様邸のコンセプトは「老後まで安心して暮らせる住まい」。先々のメンテナンスを見越し、配線や配管は工夫しました。エレベータ用スペースの確保やスロープに改修できる玄関ポーチなど、50年後を見据えて設計しました。K様より「問合せの段階から建築士さんが対応してくれるから、込み入った質問も的確で、地元で昔から知っているという事もあり、土地探しから安心してお任せする事が出来ました。『そんなことが出来るの?』と思うような色々な提案や、変更にも柔軟に対応を頂き、楽しみながら家づくりを行う事が出来ました。」とのお言葉を頂きました。